17
Map
Streetview

St. Peters Terrace, Pwllheli LL53

SSTC
£265,000
4 bedrooms, 1 bathrooms, 1 receptions

Summary:


Cartref 4 ystafell wely sylweddol sydd wedi'i leoli dros dri llawr ym Mhwllheli. Yn cynnwys cegin/ystafell fwyta syfrdanol gyda ynys, lolfa glyd gyda stôf goed ac ystafell gawod gyfoes. Tu allan mae yna batio, yn ddelfrydol ar gyfer byw teuluol modern. | Stylish and spacious 4 bedroom home set over three floors in Pwllheli. Featuring a stunning kitchen/diner with island, cosy lounge with wood-burning stove and contemporary shower room. Outside has a patio, ideal for modern family living.


Key Features:

  • Cartref teulu sylweddol gyda 4 ystafell wely wedi'i osod dros dri llawr
  • Lolfa glyd gyda stôf llosgi coed a ffenestr bae
  • Cegin/ystafell fwyta agored fodern gydag ynys ganolog a drysau patio
  • Patio sy'n gwynebu'r de-orllewin, lle eistedd ac ystafell ardd
  • Lleoliad canol tref yn agos at bopeth sydd gan y dref arfordir yna i gynnig
  • Spacious 4-bedroom family home over three floors
  • Cosy lounge with wood-burning stove and bay window
  • Modern open plan kitchen/diner with central island and patio doors
  • South-west facing patio, decking & garden room – perfect for entertaining
  • Prime town centre location close to Pwllheli marina, harbour, sailing, two beaches, shops, schools & college


Full Details:




Crynodeb | summary:
Cartref 4 ystafell wely sylweddol sydd wedi'i leoli dros dri llawr ym Mhwllheli. Yn cynnwys cegin/ystafell fwyta syfrdanol gyda ynys, lolfa glyd gyda stôf goed ac ystafell gawod gyfoes. Tu allan mae yna batio, yn ddelfrydol ar gyfer byw teuluol modern.

Stylish and spacious 4 bedroom home set over three floors in Pwllheli. Featuring a stunning kitchen/diner with island, cosy lounge with wood-burning stove and contemporary shower room. Outside has a patio, ideal for modern family living.

Croeso | welcome:
Wedi’i leoli yn nhref arfordir Pwllheli, mae’r ty teras sylweddol hwn gyda phedair ystafell wely wedi ei osod dros dri llawr. Gan gyfuno nodweddion cymeriad â diweddariadau modern, mae’n cynnwys lolfa groesawgar gyda stôf llosgi coed a a chegin/lle bwyta agored syfrdanol gyda ynys yn y canol. Drysau yn agor i'r patio braf gyda lle eistedd a hafdy.

Yn gartref teulu perffaith, mae'r eiddo yn cynnig pedair ystafell wely o faint da, ystafell ymolchi fodern, gwres canolfan canolog, broadband cyflym, a mynediad cyfleus at siopau, ysgolion, y marina, cyfleusterau hwylio a'r traeth.

Located in the popular coastal town of Pwllheli, this attractive four bedroom terrace home offers stylish, spacious accommodation over three floors. Combining character features with modern updates, it includes a welcoming lounge with wood-burning stove and an impressive open-plan kitchen/diner with central island and patio doors opening onto a south-west facing patio with decking and garden room.

Ideal for a family, the property offers four well-proportioned bedrooms, a contemporary shower room, mains gas central heating, high-speed broadband, and convenient access to shops, schools, the marina, sailing facilities, two beaches, and the picturesque harbour.

Cyntedd | entrance hall:
Composite entrance door opening into a welcoming hallway with oak herringbone timber flooring. Decorative ceiling with ornate moulded detailing, recessed LED spotlights, and central light fitting. Wall-mounted thermostat, modern mains consumer unit, central heating radiator, and smoke detector. Balustrade staircase rises to the first floor with under-stairs storage cupboard.

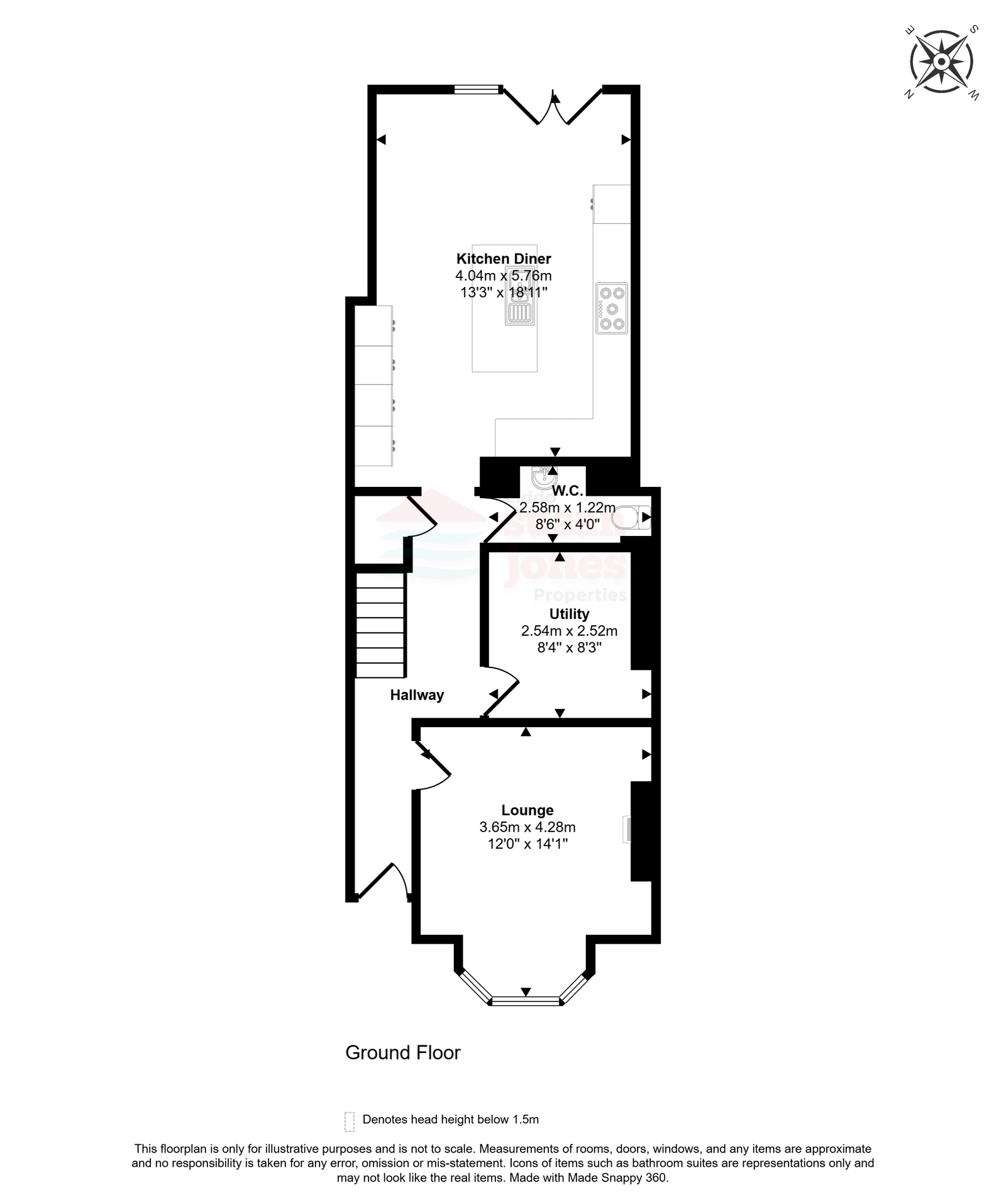
Lolfa | lounge: - 3.65m x 4.28m (12'0" x 14'1") Maximum measurements.
A charming reception room featuring a recessed log burner (wood-burning stove) set on a black hearth, creating an attractive focal point. Oak herringbone timber flooring continues throughout. Decorative plaster ceiling with ornate moulding and ceiling rose with multi-arm pendant light fitting. Bay window with uPVC double glazing to the front elevation with central heating radiator beneath. Decorative wall panelling and ceiling-mounted smoke detector.

Cegin gyda lle bwyta | kitchen/diner: - 4.04m x 5.76m (13'3" x 18'11") Minimum measurements.
A south-east facing beautifully appointed kitchen/diner fitted with shaker-style wall and base units and full-height integrated cabinetry housing a double oven and microwave. A large central island provides generous preparation space and incorporates an inset sink with brass mixer tap.

White solid worktops complement the cabinetry and incorporate an integrated induction hob with external extractor venting outside. The room benefits from under-cabinet lighting, pendant feature lighting, recessed LED ceiling spotlights, and a uPVC double-glazed rooflight flooding the space with morning and early afternoon light. UPVC double glazed patio doors open onto the rear patio. Tiled flooring and vertical central heating radiator complete the room.

Iwtiliti | utility: - 2.54m max x 2.52m (8'4" max x 8'3")
Practical utility room with tiled flooring, recessed LED ceiling spotlights, and central heating radiator. Plumbing and space for a washing machine.

Toiled | cloakroom: - 2.58m x 1.22m max (8'6" max x 4'0")
Cloakroom fitted with W.C. And wash hand basin (to be updated), with tiled flooring and recessed LED ceiling spotlights.

Cyntedd llawr cyntaf | first floor landing:
Landing providing access to the shower room and two bedrooms, with balustrade staircase rising to the second floor. Fitted with ceiling light, recessed LED spotlights, and smoke detector. Landing and staircase carpeted to match the adjoining bedrooms.

Ymolchfa | shower room: - 2.15m x 3.11m max (7'1" x 10'2" max)
A stylish shower room featuring a large shower enclosure with rainfall and handheld shower fittings. Twin washbasins are set within a vanity unit with wall-mounted taps, complemented by a W.C. And heated towel radiator.

The room is naturally lit by an obscure double glazed window and benefits from an extractor fan and recessed ceiling spotlights. Fully tiled walls and flooring are finished in a contemporary marble effect design.

Llofft 1 | bedroom 1: - 4.76m x 3.78m (15'7" x 12'5") maximum measurements.
A spacious north-west facing double bedroom with three separate uPVC double glazed windows. The room benefits from natural daylight and features decorative coving, ceiling light fitting, central heating radiator, and carpeted flooring.

Llofft 2 | bedroom 2: - 2.91m x 3.81m (9'7" x 12'6")
Ceiling light fitting. UPVC double glazed window. Central heating radiator and carpeted flooring.

Cyntedd ail lawr | second floor landing:
Second floor landing provides access to a storage room, housing a Worcester Bosch gas combination boiler. The landing also has a double glazed roof window. Ceiling light fitting. Smoke detector. Carpeted flooring. Balustrade staircase. Loft Hatch to roof space.

Llofft 3 | bedroom 3: - 4.75m x 3.29m (15'7" x 10'10")
Arched uPVC double glazed window with fitted blinds. Sloping ceiling with two light fittings. Central heating radiator and carpeted flooring.

Llofft 4 | bedroom 4: - 2.95m x 3.54m (9'8" x 11'7")
Opening double glazed roof window. Sloping ceiling with light fitting. Central heating radiator and carpeted flooring.

Tu allan | outside:
The property benefits from a south-west facing rear garden, with a lovely slabbed patio leading onto a composite decking seating area with garden room, ideal for relaxing or entertaining. The enclosed garden is not entirely private, as there is a gated pedestrian right of way along the terrace, with a gate at the far end. Only two neighbouring properties have access for bins and other household use.

To the front, there is a forecourt area, and a resident parking permit is available for the street through Gwynedd Council.

Perchnogaeth | tenure:
Freehold.

Gwasanaethau | services (not tested):
We believe mains gas, electric and water are connected. FTTP broadband is available.

Tystysgrif ynni | energy performance certificate: C (76).

Treth cyngor | council tax band: D.

Cyfarwyddiadau | directions:
From Pwllheli High Street, turn right at the end, passing St Peter's Church. The property is on the right. Map coordinates: 52.890308, -4.417646 | What3Words: ///flow.dwarf.removed




Viewing & Disclaimer:


Please contact us on 01758 614511 if you wish to arrange a viewing appointment for this property, or require further information.

Susan Jones endeavour to maintain accurate depictions of properties in Virtual Tours, Floor Plans and descriptions, however, these are intended only as a guide and purchasers must satisfy themselves by personal inspection.

 


IE8 Alert! Cookie Alert!

To get the best possible experience using our website we recommend you upgrade to a modern web browser. More info