26
Map
Streetview

Lleyn Street, Pwllheli LL53

£169,000
3 bedrooms, 1 bathrooms, 1 receptions

Summary:


Dyma gartref gyda 3 lofft sydd wedi ei leoli yn gyfleus i'r Stryd Fawr a phopeth sydd gan y dref yma i gynnig. | Bronallt is a 3 bedroom mid terrace home, conveniently situated within walking distance of the High Street and all the amenities this charming seaside town has to offer.


Key Features:

  • Rear yard and good sized shed
  • Double glazing and central heating
  • Lounge with dining area, kitchen
  • 2 Double bedrooms and attic bedroom
  • Spacious mid terrace home
  • Iard i'r cefn gyda sied ddefnyddiol
  • Ffenestri gwydr dwbl a gwres canolog
  • Lolfa gyda lle bwyta, cegin
  • 2 Llofft dwbl a llofft atig
  • Eiddo sylweddol mewn canol rhes


Full Details:




Crynodeb | summary:
Dyma gartref gyda 3 lofft sydd wedi ei leoli yn gyfleus i'r Stryd Fawr a phopeth sydd gan y dref yma i gynnig.

Bronallt is a 3 bedroom mid terrace home, conveniently situated within walking distance of the High Street and all the amenities this charming seaside town has to offer.

Croeso | welcome:
Wedi ei osod dros 3 llawr ac sydd yn cynnig mwy o le byw na fuasech yn ei feddwl. Ar y llawr gwaelod mae yna lolfa, lle bwyta, a chegin. Ar y llawr cyntaf mae yna 2 llofft ac ymolchfa a llofft atig ar yr ail lawr.

Tu allan mae yna iard a sied defnyddiol.

A deceptively spacious mid terrace home located in a sought after location benefiting from double glazing and gas central heating. On the ground floor you'll find the lounge, dining area and kitchen. To the first floor you have 2 bedrooms and bathroom plus attic bedroom on the second floor with views over rooftops towards the sea.

Outside you have a rear yard and a good sized useful shed.

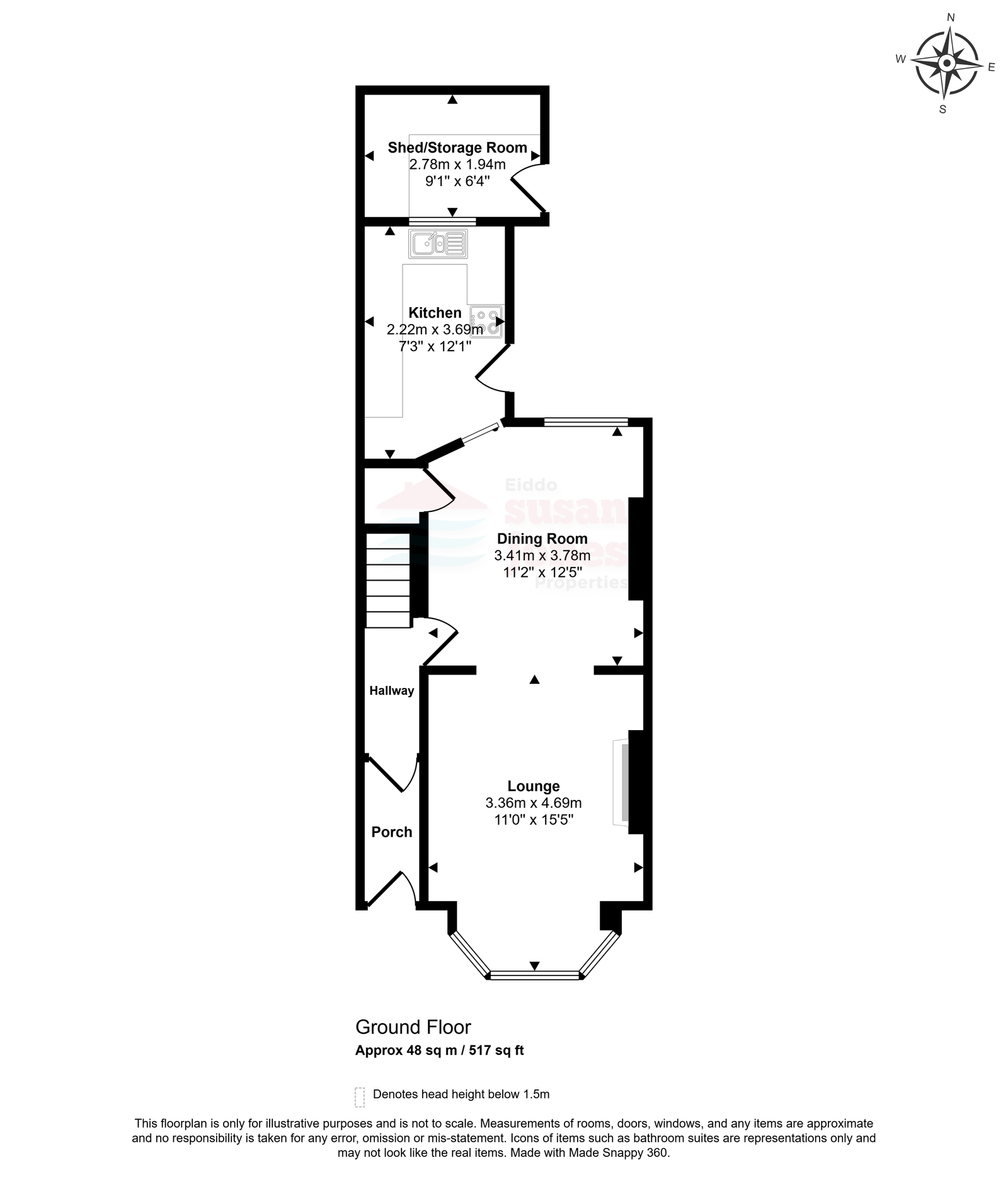
Cyntedd| entrance hall: - 0.86m x 2.2m (2'9" x 7'2")
uPVC double glazed door. Door to:

Cyntedd | hallway: - 0.87m x 1.99m (2'10" x 6'6")
Stairs to first floor. Door to:

Ystafell fwyta | dining room: - 3.41m x 3.78m (11'2" x 12'5") Maximum measurements.
UPVC double glazed window, radiator. Storage cupboard under the stairs. Opening into:

Lolfa | lounge: - 3.36m x 4.69m (11'0" x 15'5") Maximum measurements.
UPVC double glazed windows to bay window. Feature fireplace. 2 Radiators.

Cegin | kitchen: - 2.22m x 3.69m (7'3" x 12'1") Maximum measurements.
Range of base and wall units. UPVC double glazed window and uPVC double glazed stable style door to outside.

Pen grisiau llawr cyntaf | first floor landing: - 0.91m x 3.94m (2'11" x 12'11")
Stairs to second floor.

Llofft 1 | bedroom 1: - 4.38m x 3.59m (14'4" x 11'9") Maximum measurements.
Built-in wardrobes and cupboards. 2 uPVC double glazed windows, radiator.

Llofft 2 | bedroom 2: - 2.64m x 3.67m (8'8" x 12'0")
uPVC double glazed window, radiator.

Ymolchfa | bathroom: - 2.28m x 2.68m (7'6" x 8'10") Maximum measurements.
Panelled bath with shower over, W.C., pedestal washbasin. UPVC double glazed window, radiator. Built-in cupboard with gas combi boiler.

Pen grisiau ail lawr | second floor landing: - 0.9m x 1.98m (2'11" x 6'6")
Storage to eaves.

Ystafell atig | attic bedroom: - 4.41m x 6.18m (14'6" x 20'3") Maximum measurements.
2 Velux windows, 2 radiators.

Tu allan | outside:
Rear courtyard and shed/storage room 2.78m x 1.94m. Gate providing pedestrian access around the rear of the terrace, handy for bins, recycling and bicycle etc.

Perchnogaeth | tenure:
Freehold.

Tystysgrif ynni | energy performance certificate: D (65)

treth cyngor | council tax band:C

gwasanaethau | services (not tested):
We believe that mains water, electric, drainage and gas central heating are connected.

Cyfarwyddiadau | directions:
From the High Street, proceed onto Lleyn Street (PenlĂ´n Llyn). Bronallt can be found on your right hand side. Map coordinates: 52.889198 -4.422064 What3words: ///outwards.marketing.composer




Viewing & Disclaimer:


Please contact us on 01758 614511 if you wish to arrange a viewing appointment for this property, or require further information.

Energy Performance Certificate
Click here to view the Energy Efficiency Rating and Environmental Impact Rating for this property.


Susan Jones endeavour to maintain accurate depictions of properties in Virtual Tours, Floor Plans and descriptions, however, these are intended only as a guide and purchasers must satisfy themselves by personal inspection.

 


IE8 Alert! Cookie Alert!

To get the best possible experience using our website we recommend you upgrade to a modern web browser. More info