22
Map
Streetview

Glan Erch, Abererch LL53

£295,000
3 bedrooms, 1 bathrooms, 2 receptions

Summary:


Chwilio am fyngalo dormer gyda 3 ystafell wely sydd gyda gerddi braf a garej? Mae'n werth ystyried Criga. | Looking for a 3 bedroom dormer bungalow with spacious garden and attached garage? Criga is certainly worth considering.


Key Features:

  • Bunglo dormer gyda 3 llofft
  • Lolfa, cegin ac ystafell fwyta
  • Ystafell gawod
  • Ffenestri gwydr dwbl a gwres canolog
  • Garej, lle parcio a gerddi
  • A 3 bedroom semi detached dormer bungalow
  • Lounge, kitchen and dining room
  • Shower room
  • UPVC double glazing and gas central heating
  • Garage, off road parking and gardens


Full Details:




Crynodeb | summary:
Chwilio am fyngalo dormer gyda 3 ystafell wely sydd gyda gerddi braf a garej? Mae'n werth ystyried Criga.

Looking for a 3 bedroom dormer bungalow with spacious garden and attached garage? Criga is certainly worth considering.

Croeso | welcome:
Dyma fyngalo dormer wedi'i leoli mewn cul-de-sac poblogaidd. Ar y llawr gwaelod mae cyntedd, lolfa, cegin, ystafell fwyta ac ystafell haul. Ar y llawr cyntaf fe welwch ystafell gawod a 3 ystafell wely.

Y tu allan, mae gan yr eiddo fynedfa breifat gyda pharcio oddi ar y ffordd, garej a gerddi sy'n ymestyn i'r ochr, gan gyrraedd glan afon hardd Afon Erch.

This charming semi-detached dormer bungalow is located in a sought-after cul-de-sac and offers the added benefits of uPVC double glazing and mains gas central heating. The ground floor comprises an entrance porch, hallway, bright and spacious lounge, kitchen, dining room, and a delightful conservatory. To the first floor you'll find a shower room and 3 bedrooms.

Outside, the property features a private driveway with off-road parking, an attached garage, and expansive lawned gardens that extend to the side, reaching the scenic riverbank of the Afon Erch. This tranquil setting allows you to enjoy the gentle sounds of the river as it flows by, a natural soundtrack that enhances the peaceful atmosphere, providing a calming, nature-inspired backdrop, perfect for relaxing or simply watching the world go by.

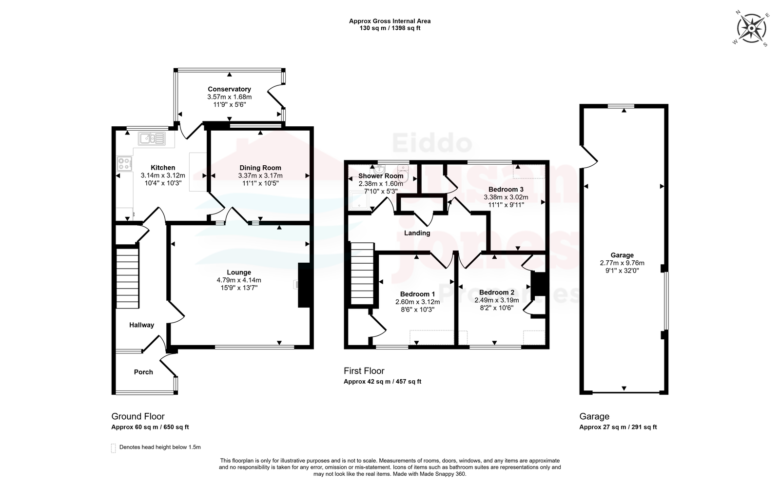
Cyntedd | entrance porch: - 1.99m x 1.28m (6'6" x 4'2")
uPVC double glazed windows and door.

Cyntedd | entrance hall: - 0.95m min x 4.28m (3'1" x 14'1")
Radiator. Stairs to first floor landing with storage under. Stairlift can remain or be removed prior to completion.

Lolfa | lounge: - 4.79m x 4.14m (15'9" x 13'7")
uPVC double glazed window, 2 radiators. Fireplace with living flame gas fire.

Ystafell fwyta | dining room: - 3.37m x 3.17m (11'1" x 10'5")
uPVC double glazed window, radiator.

Cegin | kitchen: - 3.14m x 3.12m (10'4" x 10'3")
Range of fitted base and wall units. UPVC double glazed window, radiator. UPVC double glazed door to:

Ystafell haul | conservatory: - 3.57m x 1.68m (11'9" x 5'6")
uPVC double glazed windows, radiator and uPVC double glazed door to outside.

Pen grisiau llawr cyntaf | first floor landing: - 4.77m x 1.22m (15'8" x 4'0")
Access to roof space. Built-in linen cupboard.

Llofft 1 | bedroom 1: - 2.6m min x 3.12m max (8'6" min x 10'3" max)
Built-in wardrobe, uPVC double glazed window, radiator.

Llofft 2 | bedroom 2: - 2.49m min x 3.19m max (8'2" min x 10'6" max)
2 Built-in wardrobes. UPVC double glazed window, radiator.

Llofft 3 | bedroom 3: - 3.38m x 3.02m (11'1" x 9'11") l-Shaped, maximum measurements.
Built-in wardrobe, uPVC double glazed window, radiator.

Ymolchfa | shower room: - 2.38m x 1.6m (7'9" x 5'3") Maximum measurements.
Shower cubicle with electric shower. Vanity unit with sink and storage under. W.C., radiator, heated towel radiator. UPVC double glazed window.

Tu allan | outside:
Gated driveway providing off road parking. Attached garage - 2.77m x 9.76m (9'1" x 32'0") with power and light plus workshop area. Side lawned garden extending beyond the privets with small outbuilding and lawn. Steps leading up riverbank to enjoy Afon Erch.

Perchnogaeth | tenure:
Freehold.

Tystysgrif ynni | energy performance certificate: D (65)

treth cyngor | council tax band: D

gwasanaethau | services (not tested):
We believe that mains water, electric, drainage and gas central heating are connected.

Cyfarwyddiadau | directions:
In the village of Abererch, turn into Glan Erch and Criga can be found at the far end of the cul-de-sac. Map coordinates: 52.904567 -4.382540 What3Words: ///disposing.spilled.skirt




Viewing & Disclaimer:


Please contact us on 01758 614511 if you wish to arrange a viewing appointment for this property, or require further information.

Energy Performance Certificate
Click here to view the Energy Efficiency Rating and Environmental Impact Rating for this property.


Susan Jones endeavour to maintain accurate depictions of properties in Virtual Tours, Floor Plans and descriptions, however, these are intended only as a guide and purchasers must satisfy themselves by personal inspection.

 


IE8 Alert! Cookie Alert!

To get the best possible experience using our website we recommend you upgrade to a modern web browser. More info