25
Map
Streetview

Morfa Garreg, Pwllheli LL53

SSTC
£160,000
3 bedrooms, 1 bathrooms, 1 receptions

Summary:


Edrych am gartref gyda 3 llofft, gardd a lle parcio i'r cefn ac sydd yn agos i'r traeth? Mae werth i chi ymweld | Looking for a 3 bedroom house that's got a garden, parking to the rear and close to the beach? This one should be viewed.


Key Features:

  • Eiddo canol rhes
  • 3 Llofft
  • Lolfa gyda lle bwyta
  • Ffenestri gwydr dwbl a gwres canolog
  • Gardd tu blaen ac i'r cefn, sied a lle parcio
  • Ex Local Authority terrace house
  • 3 Bedrooms
  • Lounge with dining area
  • UPVC double glazing and gas central heating
  • Garden to front and rear, shed plus parking


Full Details:




Crynodeb | summary:
Edrych am gartref gyda 3 llofft, gardd a lle parcio i'r cefn ac sydd yn agos i'r traeth? Mae werth i chi ymweld.

Looking for a 3 bedroom house that's got a garden, parking to the rear and close to the beach? This one should be viewed.

Croeso | welcome:
Dyma gyn dy Cyngor wedi ei osod ar ddau lawr. Lolfa gyda lle bwyta, cegin a chyntedd i'r llawr gwaelod. 3 Llofft, ymolchfa a thoiled ar wahân i'r llawr cyntaf.

Tu allan mae yna ardd i'r tu blaen, sied a gardd i'r cefn. Mae yna le parcio ar y lon a hefyd i'r cefn.

A mid terrace ex Local Authority house with lounge/diner, kitchen, rear porch to the ground floor. 3 Bedrooms, shower room with separate W.C., to first floor.

Front gravelled garden with shrubs. Shared pathway to rear enclosed garden with shed. Parking area to the rear. Close to the beach and all amenities offered by the seaside town of Pwllheli.

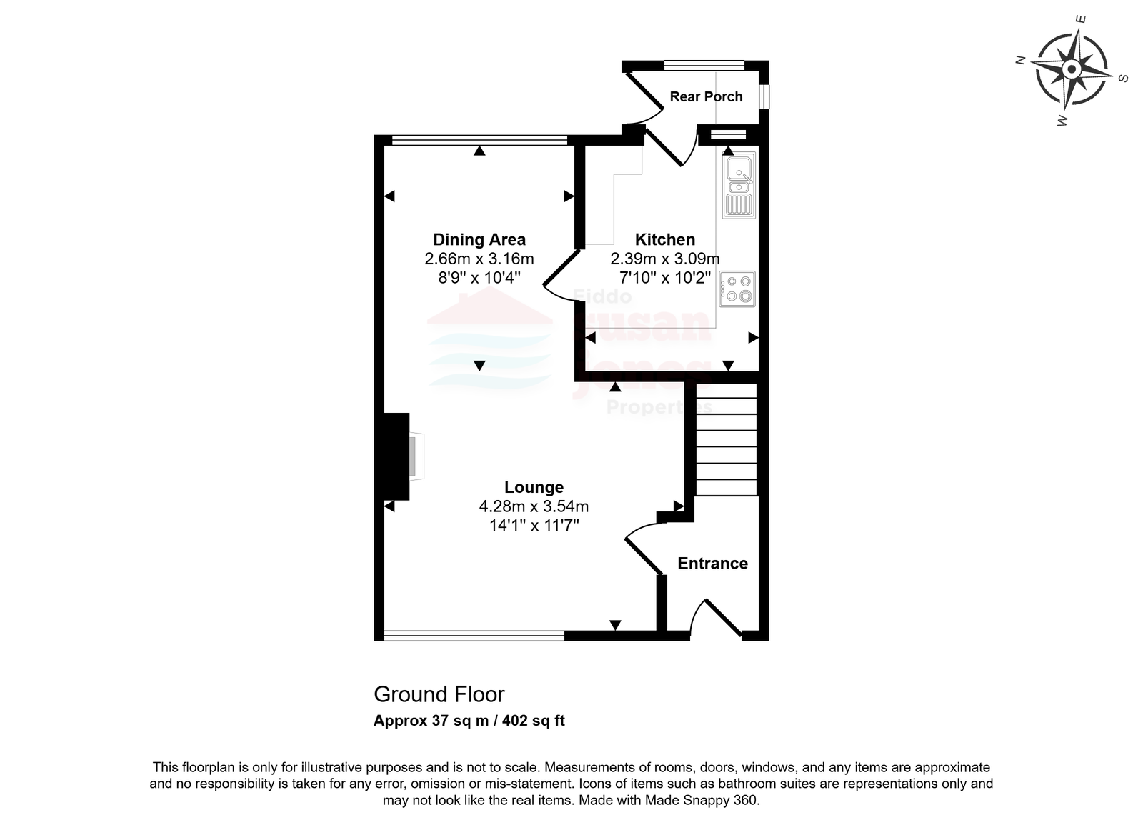
Cyntedd | entrance hall: - 1.28m Max x 1.88m (4'2" x 6'2")
uPVC door. Radiator. Stairs to first floor.

Lolfa gyda lle bwyta | lounge/diner: - 4.28m x 6.7m (14'1" x 21'11") Maximum measurements.
Fireplace with gas fire. 2 uPVC double glazed windows, 2 radiators.

Cegin | kitchen: - 2.39m x 3.09m (7'10" x 10'2")
Range of base and wall units. Electric oven and gas hob with cooker hood above. Stainless steel sink unit with drain. UPVC door and uPVC double glazed window.

Cyntedd cefn | rear porch: - 1.77m x 0.74m (5'10" x 2'5")
uPVC glazed door and windows. Plumbing for washing machine.

Pen grisiau llawr cyntaf | first floor landing: - 0.97m Min x 2.54m (3'2" x 8'4")
Access to roof space. Built-in cupboard with gas combi boiler.

Llofft 1 | bedroom 1: - 3.25m x 3.67m (10'8" x 12'0")
uPVC double glazed window, radiator.

Llofft 2 | bedroom 2: - 3.28m x 2.91m (10'9" x 9'7")
uPVC double glazed window with harbour views, radiator.

Llofft 3 | bedroom 3: - 2.47m x 2.45m (8'1" x 8'0")
Built-in wardrobe. UPVC double glazed window, radiator.

Ymolchfa | shower room: - 1.61m x 1.43m (5'3" x 4'8")
Modern suite with shower cubicle, vanity unit with washbasin and storage under. Towel radiator. UPVC double glazed window.

Toiled | toilet: - 0.78m x 1.48m (2'7" x 4'10")
W.C. Ceiling spot lamp. Engineered timber flooring. Tiled walls. UPVC double glazed window.

Tu allan | outside:
Front gravelled garden with shrubs. Shared pathway to rear enclosed garden with shed 2.47m x 1.7m (8'1" x 5'7") with power and light. Parking area to the rear and double gates.

Perchnogaeth | tenure:
Freehold.

Gwasanaethau | services (not tested):
Mains water, electric, drainage, gas and central heating are connected.

Treth cyngor | council tax band: B

tystysgrif ynni | energy performance certificate: C (76)

nodyn | please note:
We have been informed that the property is steel framed.

Cyfarwyddiadau | directions:
From Embankment Road turn left into Bron Y De at the mini roundabout. Proceed along this road and number number 61 is part of the last terrace before leaving Morfa Garreg on your right hand side. Map coordinates: 52.882472 -4.406429 what3words: ///nowadays.flashback.river




Viewing & Disclaimer:


Please contact us on 01758 614511 if you wish to arrange a viewing appointment for this property, or require further information.

Energy Performance Certificate
Click here to view the Energy Efficiency Rating and Environmental Impact Rating for this property.


Susan Jones endeavour to maintain accurate depictions of properties in Virtual Tours, Floor Plans and descriptions, however, these are intended only as a guide and purchasers must satisfy themselves by personal inspection.

 


IE8 Alert! Cookie Alert!

To get the best possible experience using our website we recommend you upgrade to a modern web browser. More info